Beykoz Belediyesi iştiraki Beytaş Beykoz Belediyesi Halk Pazarları T.A.Ş bünyesinde çalışacak 1 Taş Ustası, 18 Beden İşçisi, 1 Marangoz (Ahşap Ustası), 2 Peyzaj Mimarı, 1 Ziraat Mühendisi, 2 Ağaç Budama Ustası alımı yapacak.

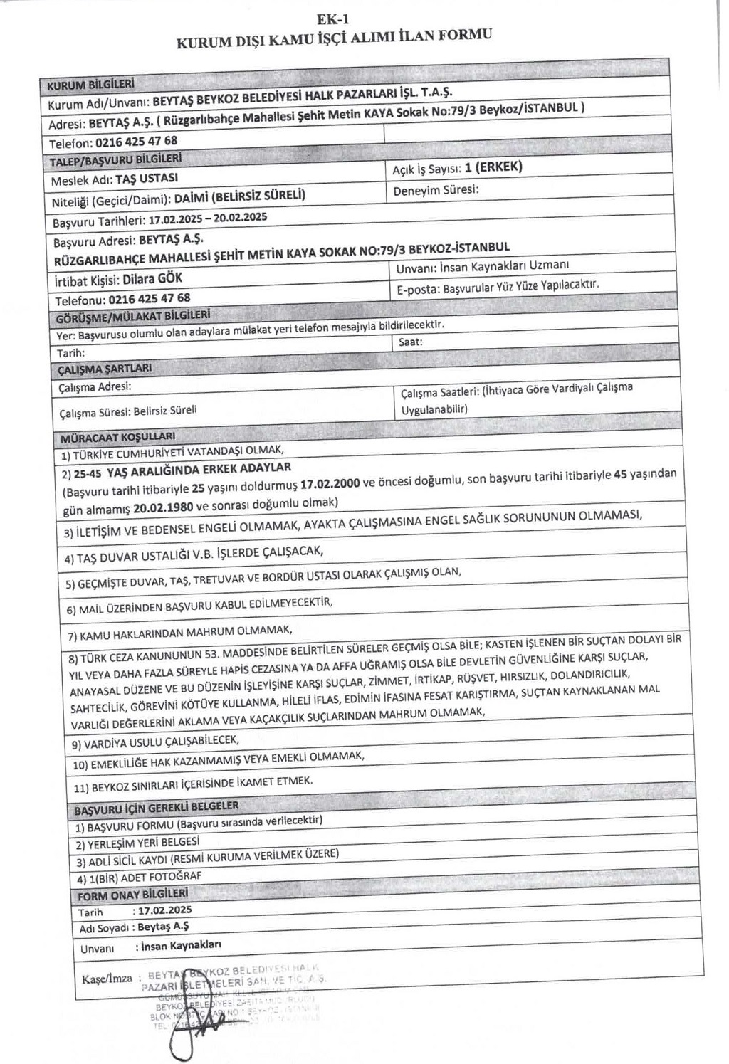
TAŞ USTASI ŞARTLARI:
– 25-45 yaş aralığında erkek adaylar,
– İletişim ve bedensel engeli olmamak, ayakta çalışmaya engel sağlık sorununun olmaması,
– Taş duvar ustalığı vb. işleri yapmak,
– Mail üzerinden başvuru kabul edilmeyecektir,
– Tercihen yüksek lisans ve üzeri öğrenim görmüş,
– Beykoz sınırları içerisinde ikamet etmek.

BEDEN İŞÇİSİ ŞARTLARI:
– 20-45 yaş aralığında erkek adaylar,
– İletişim ve bedensel engeli olmamak, ayakta çalışmaya engel sağlık sorununun olmaması,
– Çim biçme ve tırpan, çapa ve toplayıcı, taşıma kaldırma, istifleme yapabilecek, kürek, el arabası kullanabilen
– Beykoz sınırları içerisinde ikamet etmek.

MARANGOZ ŞARTLARI:
– 20-45 yaş aralığında erkek adaylar,
– İletişim ve bedensel engeli olmamak, ayakta çalışmaya engel sağlık sorununun olmaması,
– Ahşap malzemeleri istediği gibi şekillendirebilen,
– Beykoz sınırları içerisinde ikamet etmek.

PEYZAJ MİMARI ŞARTLARI:
– 22-40 yaş aralığında kadın/erkek adaylar,
– İletişim ve bedensel engeli olmamak, ayakta çalışmaya engel sağlık sorununun olmaması,
– Üniversitelerin peyzaj mimarlığı bölümü mezun,
– Beykoz sınırları içerisinde ikamet etmek.

ZİRAAT MÜHENDİSİ ŞARTLARI:
– 30-40 yaş aralığında erkek adaylar,
– İletişim ve bedensel engeli olmamak, ayakta çalışmaya engel sağlık sorununun olmaması,
– Üniversitelerin ziraat fakültelerinden mezun,
– Beykoz sınırları içerisinde ikamet etmek.

AĞAÇ BUDAMA USTASI ŞARTLARI:
– 20-45 yaş aralığında erkek adaylar,
– Ağaç türüne uygun budama yöntemlerine hâkim,
– En az 1 ırata belgesi olan,
– En az lise mezunu,
– Beykoz sınırları içerisinde ikamet etmek.
BAŞVURU İÇİN GEREKLİ BELGELER
– Başvuru Formu (Başvuru sırasında verilecek)
– Adli Sicil Kaydı
– Yerleşim yeri belgesi
BAŞVURU BİLGİLERİ
Başvurular, 20 Şubat 2025 tarihine kadar BEYTAŞ A.Ş Rüzgarlıbahçe Mahallesi Şehit Metin Kaya Sokak No: 79/3 adresine yapılacaktır.

